
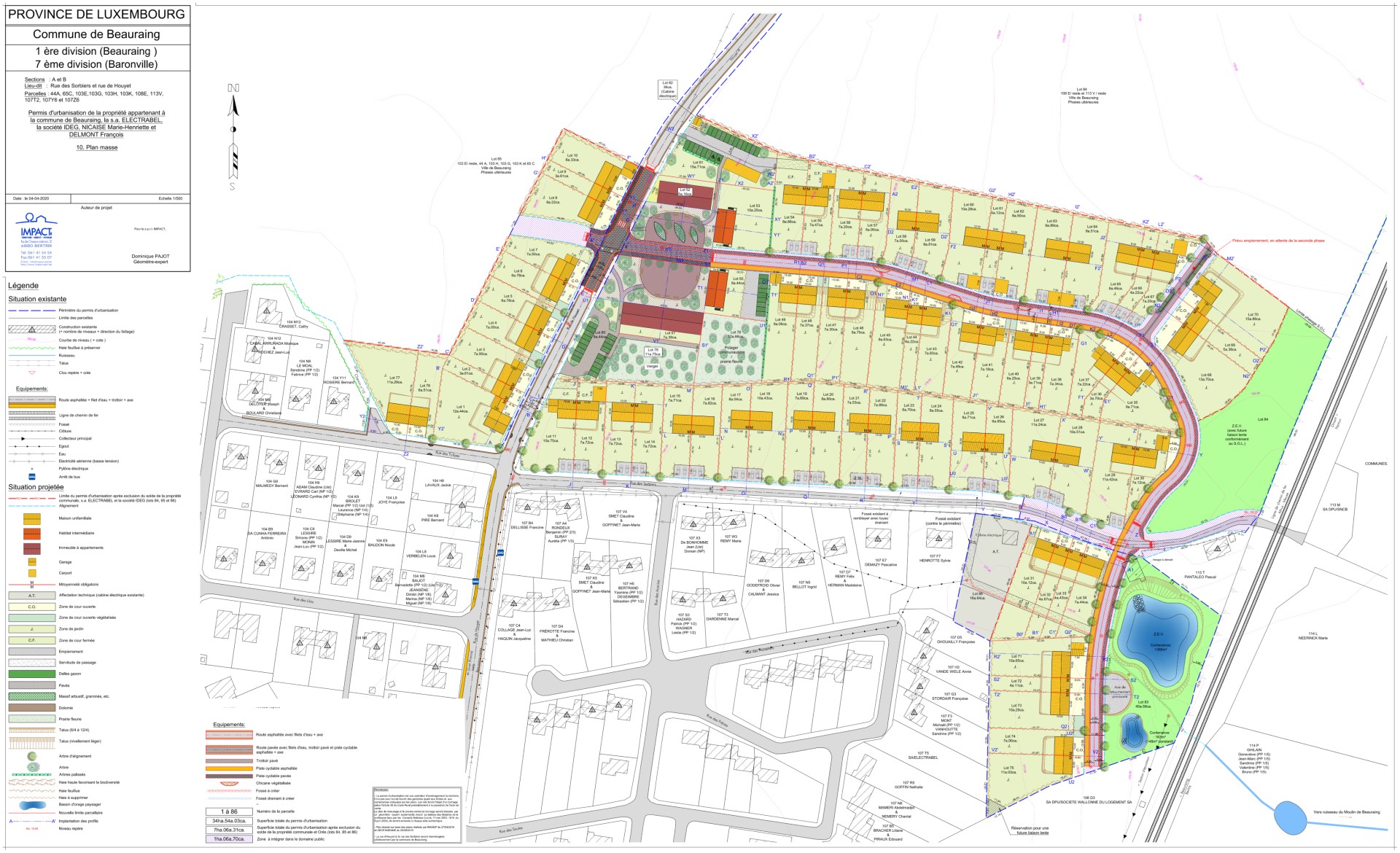
Création de 87 maisons unifamiliales, 2 immeubles à appartements.
Le projet comprend la création d’une voirie secondaire de distribution.
Une placette est aménagée au croisement de la nouvelle voirie et de la route d’Houyet. Autour de cette placette s’implante les immeubles multifamiliaux. A l’arrière de ces immeubles, des zones de stationnement arboré et une zone de parc privé sont prévues.
Au sud, une large zone d’espaces verts est aménagée ainsi qu’un bassin d’orage paysager pour le tamponnement des eaux pluviales.