Impact

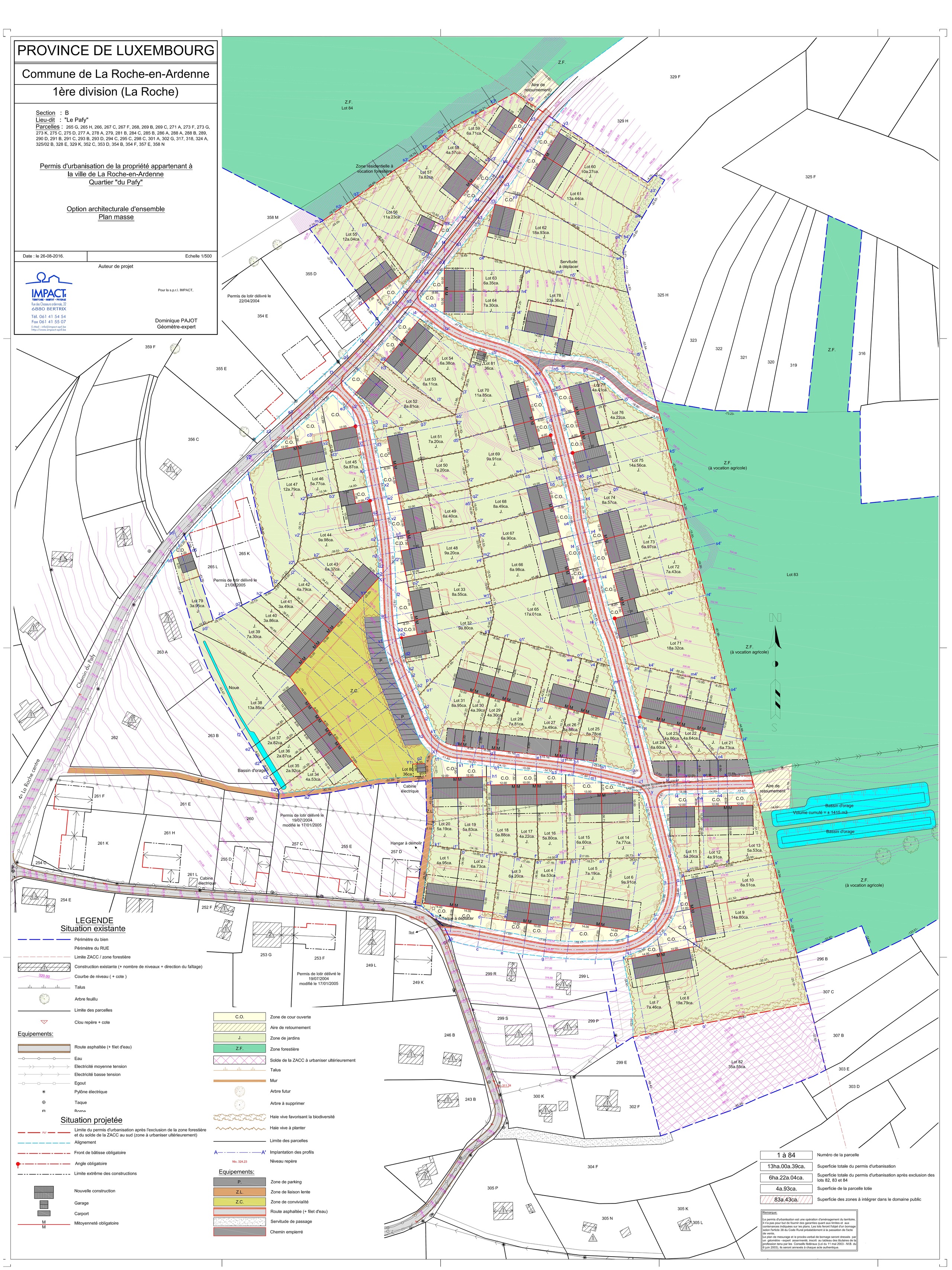
Permis d'urbanisation du Pafy à La Roche-en-Ardenne

Permis d'urbanisation
Aménagement du territoire
La Roche-en-Ardenne
2017
M.O. : Commune de La Roche-En-Ardenne

Création de 80 maisons unifamiliales, une nouvelle voirie ainsi qu’une zone de convivialité et un bassin d’orage.